Cremona – Via Ghisleri

  • 3 camere da letto

  • 2 bagni

  • 256 mq

  • 2 garage

Descrizione

  • Piccolo contesto
  • Piano 2° ed ultimo
  • Terrazza mq. 17
  • Raffrescamento a pavimento
  • Impianto ricarica veicoli elettrici
  • Ristrutturato 2025
  • Ascensore
  • Domotica impianti
  • Impianto deumidificazione
  • Libero
  • Impianto fotovoltaico
  • Appartamento mq. 256
  • Riscaldamento a pavimento
  • Impianto d'allarme

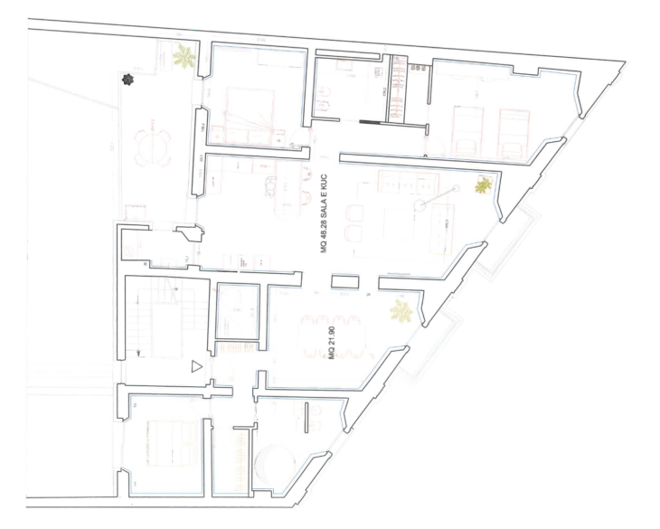
Ubicato al 2° ed ultimo piano con ascensore di un piccolo e signorile contesto completamente ristrutturato a due passi da Porta Venezia, l’appartamento di ampia metratura (mq. 256) è anch’esso modernamente e finemente ristrutturato e corredato da una terrazza di mq. 17 e da una doppia autorimessa.

Classe Energetica A/4

Caratteristiche

  • Ingresso
  • 3 Camere da letto
  • 2 Cabine armadi
  • Cantina
  • Salone / cottura
  • 2 Bagni
  • Terrazza
  • Doppio box
  • Salotto / pranzo
  • Lavanderia
  • 2 Balconi

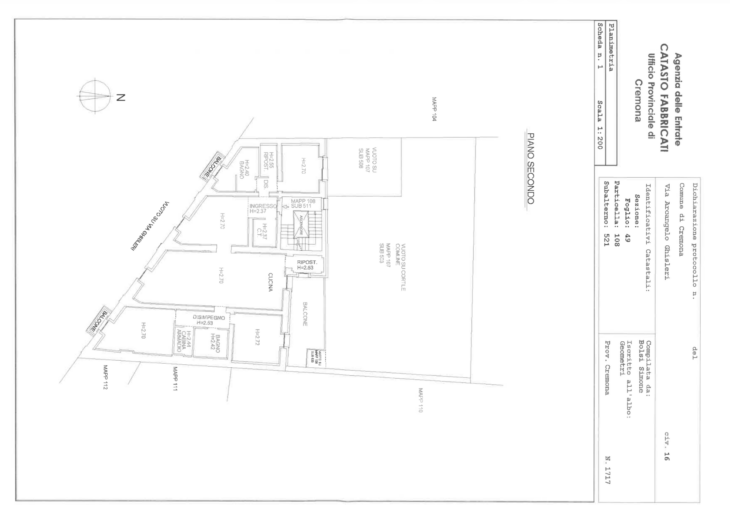
Planimetria

floor-plans floor-plans

Altri immobili